Basao HK Moon Street
Architects: Zihan Zhao, Cristiano Sardinha, Zehua Liu
Client: Basao
Location: Hong Kong
Completed: September, 2025
Film and Photography: Rui Du
Video
Project Description
Like the calm feeling of Moon Street surrounded by the busy streets of Wan Chai, BASAO’s new experiential space welcomes visitors with a tranquil and relaxing mood. More than just a commercial brand space, it serves as a welcoming gateway, inviting people into the world of tea and art. With tea as a gesture of hospitality and a focus on being present in the moment, our design, based on spatial organization and mood, aims to create a “still point,” giving visitors a peaceful moment away from the limitations of everyday life.
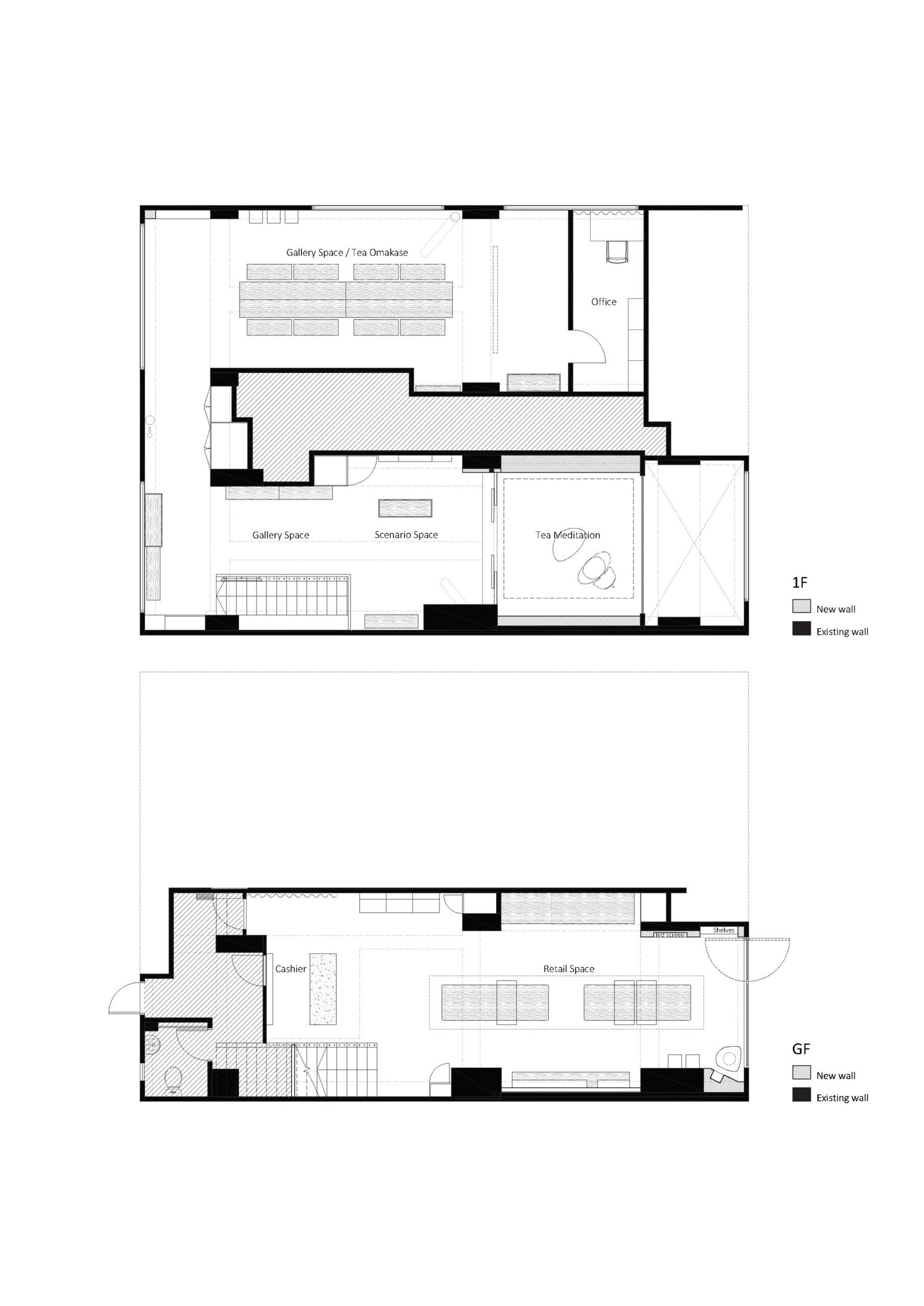
The ground floor primarily functions as a retail area. We designed flexible island display platforms, paired with components of varying heights, to create layered presentations for tea and ceramics. Working within the site’s structural constraints, we maximized the use of both side walls and irregular niches to develop display solutions that balance aesthetic mood and storage efficiency. Walking up the stairs covered with sisal to the upper level reveals a multifunctional space combining an art gallery, a tea workshop, and a private tea-tasting corner for solo contemplation.
The natural, textured materials with a minimal spatial backdrop create a rich sensory experience through contrasts: rough and refined, heavy and light, sharp and warm. This material harmony is enhanced by a strategic orchestration of light, where natural illumination, soft ambient glows, and focused accents converge to instill the space with a deeply resonant, ritualistic atmosphere.






























